CARLSBAD MUNICIPAL SCHOOLS
DESERT WILLOW & OCOTILLO ELEMENTARY SCHOOL
CARLSBAD, NM
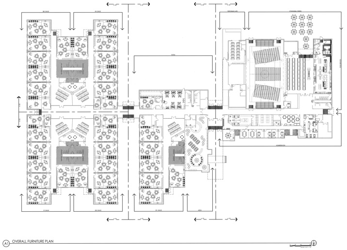
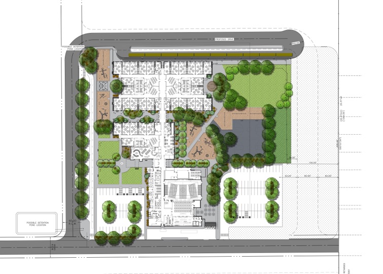
Construction for the Desert Willow Elementary School & Ocotillo Elementary School broke ground in Carlsbad, NM in May 2015. These two schools will be roughly 75,000 sq. ft., both schools will be built simultaneously.
The schools are scheduled to be open for school in fall 2016. These are both the first new schools to be built in Carlsbad Municipal School District in more than 30 years.
2016 © NCA Architecture




