RUST MEDICAL CENTER
PRESBYTERIAN HEALTHCARE
RIO RANCHO, NM
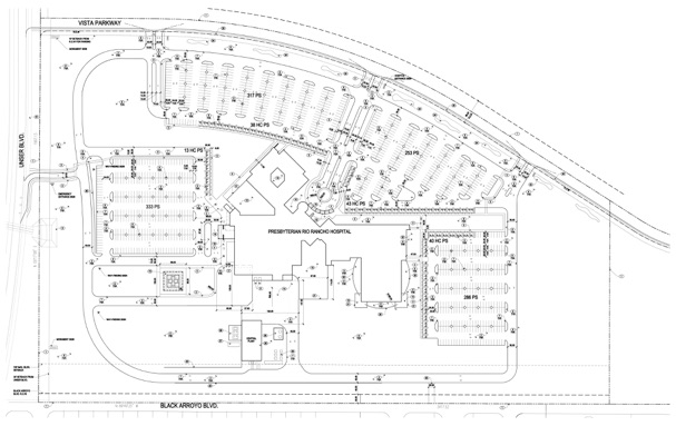
To promote wellness, the lines between indoors and outdoors are blurred with healing gardens located throughout the facility. These restorative gardens mirror the natural Southwest environment and provide spaces for refuge and family gathering. Inside the building, a warm finish palette along with natural elements and daylight help to create calming, welcoming spaces.
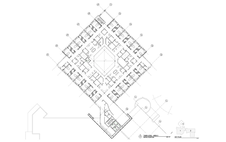
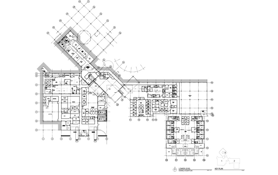
The first phase of Rust Medical Center is a five-story, full-service hospital with an associated 95,000sf Physician Office Building.Planned as a “plug-and-play” chassis where additional bed towers can be constructed and brought online with minimal disruption to the operating facility, flexibility and adaptability are the primary design drivers of the hospital.
2012 © Dekker/Perich/ Sabatini




